Selling? Book your free valuation today. 
  1. Home
  2. Properties for Sale
  3. Piel Street, Roa Island, Barrow-In-Furness

Piel Street, Roa Island, Barrow-In-Furness

Commercial Retail Property
Offers In The Region Of
£275,000
Property Details
  • Freehold Premises
  • Sought-after Location
  • No Onward Chain
  • Enclosed Outdoor Seating
  • Established Business
  • Immediate Trading Potential

Want to arrange a viewing?
Get in touch today!

Description
Floorplan
Brochure
Google Map
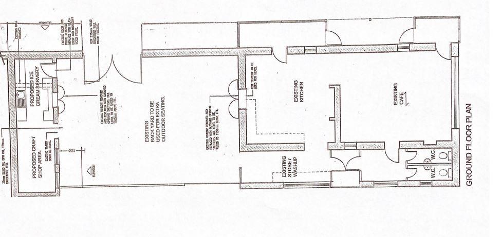
This attractive and adaptable commercial property offers excellent flexibility, benefiting from two independent access points as you approach. To the left, an entrance leads directly into the front-of-house dining area, while a separate doorway to the right opens into the ice cream parlour, allowing the two spaces to function together or independently as needed.

The main dining area is charmingly presented, featuring wooden flooring and exposed beams that create a warm coastal ambiance. This space is ideal for welcoming guests and offers a relaxed, characterful setting. From here, customers have easy access to the cloakroom facilities, which include separate ladies’ and gents’ WCs, neatly tucked away yet conveniently located.

There is a sizeable commercial kitchen which provides generous preparation and service space, with ample room for equipment and efficient workflow. The kitchen also connects directly to the enclosed outdoor seating area, enabling smooth service to exterior tables, and includes a staff access point through to the ice cream parlour.

Beyond the main operational areas, the property benefits from practical storage options. A rear offset room provides useful ground floor storage, while a loft space above offers additional capacity for stock, equipment, or seasonal items.

One of the standout features of the property is the enclosed outdoor seating area. This private, space is a valuable asset, giving customers the opportunity to enjoy food and drinks in the open air—particularly appealing on bright, sunny beach days. It enhances the customer experience and extends the property’s trading potential during warmer months.

Overall, the layout and features of this property make it ideal for a range of hospitality or leisure uses, with excellent flow between areas and strong potential for both indoor and outdoor trade.
GuD0YoNcGEusHDIhx6okvw.jpg

Share this property

Want to arrange a viewing?

Get in touch today!

Speak to us today!

Barrow

129 -130 Ramsden Square,
Barrow-in-Furness,
Cumbria, LA14 1XA

Tel: 01229 825333

Ulverston

14 King Street,
Ulverston,
Cumbria, LA12 7DZ

Tel: 01229 525333

Millom

31 Lapstone Road,
Millom,
Cumbria, LA18 4BT

Tel: 01229 355333

Lettings

Email us

Tel: 01229 870022

General Enquiries

[email protected]

Barrow

129 -130 Ramsden Square,
Barrow-in-Furness,
Cumbria, LA14 1XA

Tel: 01229 825333

Ulverston

14 King Street,
Ulverston,
Cumbria, LA12 7DZ

Tel: 01229 525333

Millom

31 Lapstone Road,
Millom,
Cumbria, LA18 4BT

Tel: 01229 355333

Lettings

[email protected]

Tel: 01229 870022

General Enquiries

[email protected]

Disclaimer | Privacy Policy | Cookies Policy | Complaints | Company Registration Number: 07135640 - Registered in England | Registered office address Cavendish House, Kirkby-In-Furness, Cumbria, LA17 7UN | Website by Furness Media
©2026  Corrie and Co. All rights reserved. 
linkedin facebook pinterest youtube rss twitter instagram facebook-blank rss-blank linkedin-blank pinterest youtube twitter instagram